KERNケルン
「核」という意のKERN。HUIZEN随一コンパクトでシンプルな平屋は、アイコニックな三角屋根とあたたかな左官外壁の組み合わせによって整えられている。寸法的に居心地が追求された内空間には十二分な収納スペースがとられ、あなたのこだわりの家具一つ一つがより一層際立つようになっている。リビングダイニングの大開口の向こうに拡がるウッドデッキは、これから訪れる幾度もの季節を、あなたと、あなたの家族のもとへと引き寄せてくれる。豊かな暮らしに必要な「核」となれる家、それがKERNだ。
PLAN DATA
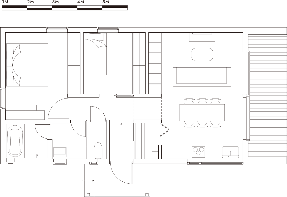
破風側に大開口面と屋根下デッキを携えた2LDKのKERN。十分にとられた収納スペースは、家の中で一つに寄り集まり、開放感のあるLDK部分と、安心感に包まれた寝室・水回り部分とを仕切る「トンネル」を生み出している。トンネルを通る時に感じる一瞬の静寂と翳りが、双方の空間の間にあるコントラストをさらに高め、日常が映画のシーンの様に体験される。ミニマルな躯体の中にも、「いい家」のエッセンスがぎっしり詰め込まれたHUIZENタイプ。※規格住宅ではありません
※この間取りは参考プランです
KERN_PLAN 01
2LDK
- 住宅床面積
- 68.00㎡/20.50坪
- ポーチ
- 4.50㎡/1.50坪
- デッキ
- 11.00㎡/3.25坪












